Cradle to Cradle - 7 Legge Lane
Inspired by The Cradle to Cradle methodology of design, this project looked at reuse and life-cycles at differing scales and the infrastructure necessary to implement a Cradle to Cradle lifestyle to a wider community. This project concluded with the design of The Re-purposing Factory that reused existing, dilapidated buildings in order to turn them into a place for re-purposing waste objects, a place for Cradle to Cradle business start-ups and a community hack space geared towards helping the community learn and lead a Cradle to Cradle lifestyle.
Linear Life cycle Raw Material
Production Product Landfill
Cradle to Cradle Life cycle Raw Material
Production Product
Breaking down
Written by Michael Baungart and William McDonough "Cradle to Cradle; Remaking the way we make things" argues for a closed loop system to be implemented into many different aspects of society. This argument has also been conveyed by Michael Palwyn. A closed loop system is a continuing life cycle of resources; this is opposed to the predominant linear cycle in which the resources are lost to a landfill.
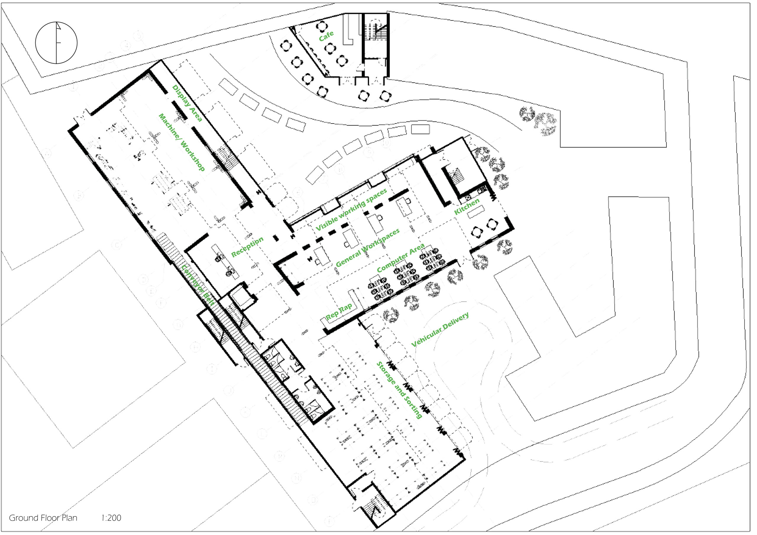
In order to situate the project I identified different towns and cities and mapped their traditional sites for waste management against the areas amenities. Using public information I found a correlation between the settlements I was observing; the more opportunities they have to recycle the less amount of waste they recycled. This was how Birmingham became the city that the project was based in. Through observation and comparison of areas of dilapidation and potential to tap in to local communities and waste resources further narrowed the site down to a block within the jewellery quarter.
Through a combination of computer modelling, physical modelling and sketching multiple options for the site was produced until a preferred masteplan for the site was created.
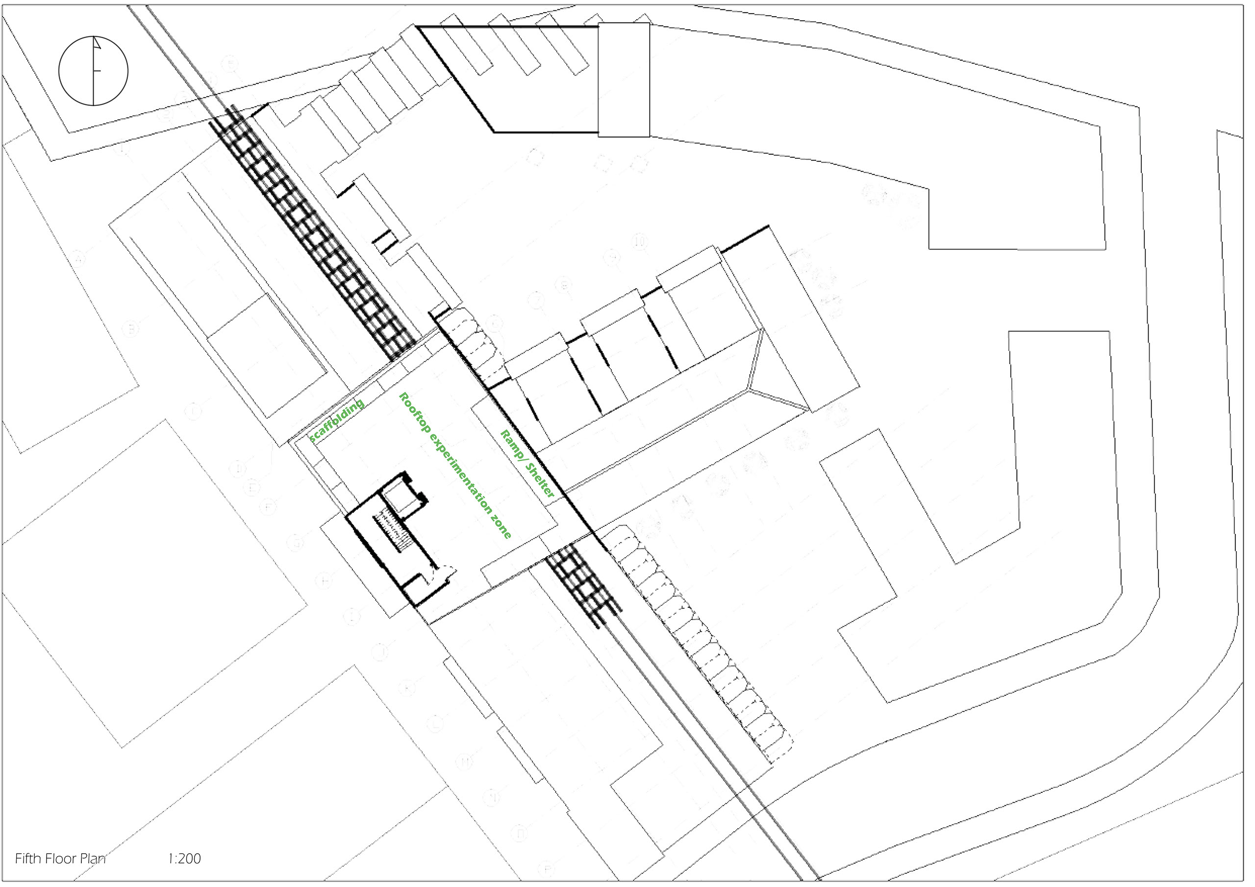
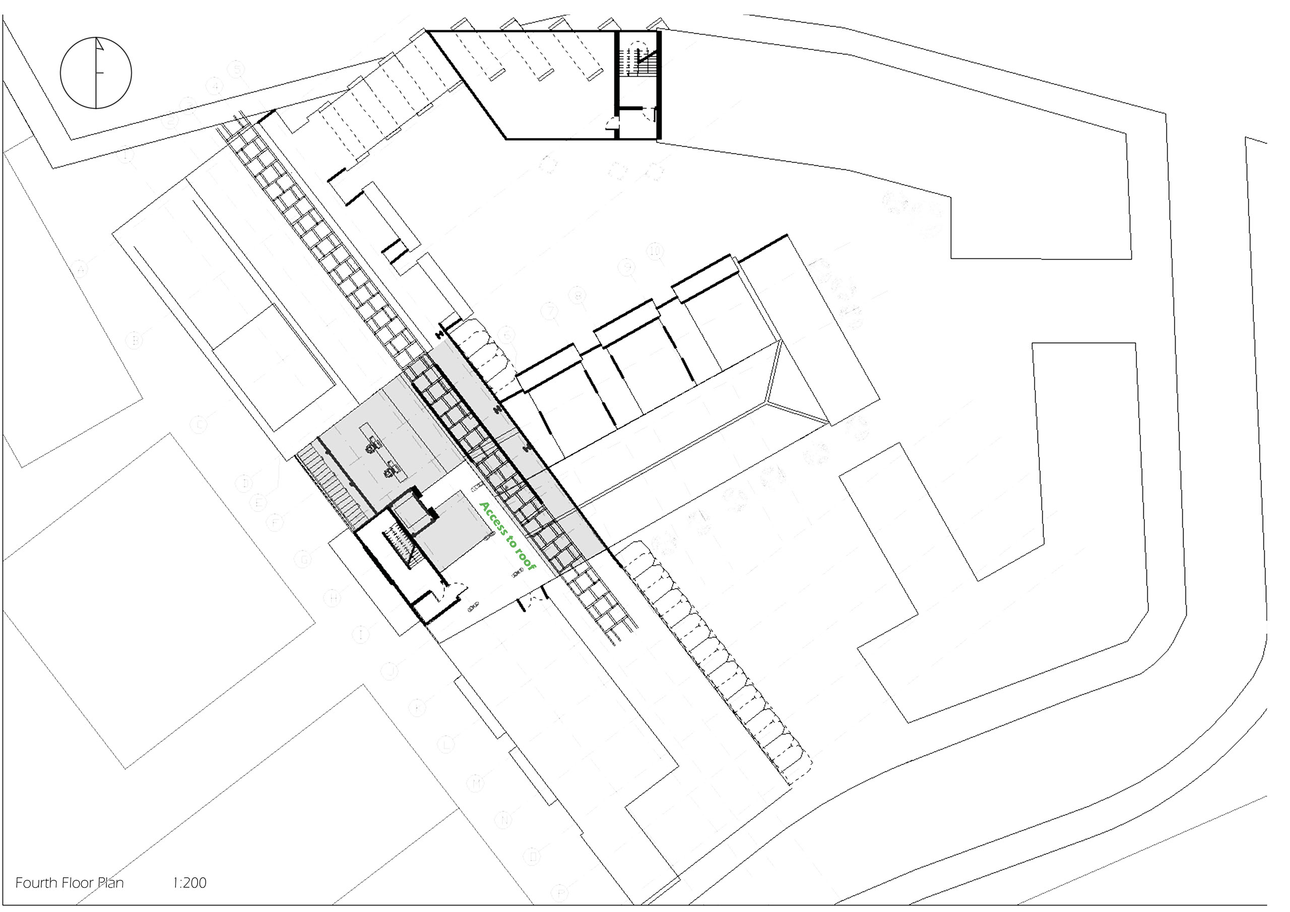
The land usage is different throughout differing levels. Interactions with the public generally occur on the ground with more work orientated affairs occurring on the higher levels and a mixture of public and upcycling activities occurring on the very top levels of the cityscape.

The building typology necessitates permeability with the public realm; within the building certain activities must be separated for safety and security of both public and users of the space. The images below show the areas that are public and controlled access. Please click on them to enlarge the image.

Cradle to Cradle - 7 Legge Lane
Inspired by The Cradle to Cradle methodology of design, this project looked at reuse and life-cycles at differing scales and the infrastructure necessary to implement a Cradle to Cradle lifestyle to a wider community. This project concluded with the design of The Re-purposing Factory that reused existing, dilapidated buildings in order to turn them into a place for re-purposing waste objects, a place for Cradle to Cradle business start-ups and a community hack space geared towards helping the community learn and lead a Cradle to Cradle lifestyle.
Linear Life cycle Raw Material
Production Product Landfill
Cradle to Cradle Life cycle Raw Material
Production Product
Breaking down
Written by Michael Baungart and William McDonough "Cradle to Cradle; Remaking the way we make things" argues for a closed loop system to be implemented into many different aspects of society. This argument has also been conveyed by Michael Palwyn. A closed loop system is a continuing life cycle of resources; this is opposed to the predominant linear cycle in which the resources are lost to a landfill.
In order to situate the project I identified different towns and cities and mapped their traditional sites for waste management against the areas amenities. Using public information I found a correlation between the settlements I was observing; the more opportunities they have to recycle the less amount of waste they recycled. This was how Birmingham became the city that the project was based in. Through observation and comparison of areas of dilapidation and potential to tap in to local communities and waste resources further narrowed the site down to a block within the jewellery quarter.
Through a combination of computer modelling, physical modelling and sketching multiple options for the site was produced until a preferred masteplan for the site was created.
The land usage is different throughout differing levels. Interactions with the public generally occur on the ground with more work orientated affairs occurring on the higher levels and a mixture of public and upcycling activities occurring on the very top levels of the cityscape.
Cradle to Cradle - 7 Legge Lane
Inspired by The Cradle to Cradle methodology of design, this project looked at reuse and life-cycles at differing scales and the infrastructure necessary to implement a Cradle to Cradle lifestyle to a wider community. This project concluded with the design of The Re-purposing Factory that reused existing, dilapidated buildings in order to turn them into a place for re-purposing waste objects, a place for Cradle to Cradle business start-ups and a community hack space geared towards helping the community learn and lead a Cradle to Cradle lifestyle.
Linear Life cycle Raw Material
Production Product Landfill
Cradle to Cradle Life cycle Raw Material
Production Product
Breaking down
Written by Michael Baungart and William McDonough "Cradle to Cradle; Remaking the way we make things" argues for a closed loop system to be implemented into many different aspects of society. This argument has also been conveyed by Michael Palwyn. A closed loop system is a continuing life cycle of resources; this is opposed to the predominant linear cycle in which the resources are lost to a landfill.
In order to situate the project I identified different towns and cities and mapped their traditional sites for waste management against the areas amenities. Using public information I found a correlation between the settlements I was observing; the more opportunities they have to recycle the less amount of waste they recycled. This was how Birmingham became the city that the project was based in. Through observation and comparison of areas of dilapidation and potential to tap in to local communities and waste resources further narrowed the site down to a block within the jewellery quarter.
Through a combination of computer modelling, physical modelling and sketching multiple options for the site was produced until a preferred masteplan for the site was created.
The land usage is different throughout differing levels. Interactions with the public generally occur on the ground with more work orientated affairs occurring on the higher levels and a mixture of public and upcycling activities occurring on the very top levels of the cityscape.
Cradle to Cradle - 7 Legge Lane Inspired by The Cradle to Cradle methodology of design, this project looked at reuse and life-cycles at differing scales and the infrastructure necessary to implement a Cradle to Cradle lifestyle to a wider community. This project concluded with the design of The Re-purposing Factory that reused existing, dilapidated buildings in order to turn them into a place for re-purposing waste objects, a place for Cradle to Cradle business start-ups and a community hack space geared towards helping the community learn and lead a Cradle to Cradle lifestyle.
Linear Life cycle Raw Material
Production Product
Landfill
Cradle to Cradle Life cycle Raw Material Breaking down
Production Product
Written by Michael Baungart and William McDonough "Cradle to Cradle; Remaking the way we make things" argues for a closed loop system to be implemented into many different aspects of society. This argument has also been conveyed by Michael Palwyn. A closed loop system is a continuing life cycle of resources; this is opposed to the predominant linear cycle in which the resources are lost to a landfill.
In order to situate the project I identified different towns and cities and mapped their traditional sites for waste management against the areas amenities. Using public information I found a correlation between the settlements I was observing; the more opportunities they have to recycle the less amount of waste they recycled. This was how Birmingham became the city that the project was based in. Through observation and comparison of areas of dilapidation and potential to tap in to local communities and waste resources further narrowed the site down to a block within the jewellery quarter.
Through a combination of computer modelling, physical modelling and sketching multiple options for the site was produced until a preferred masteplan for the site was created.
The land usage is different throughout differing levels. Interactions with the public generally occur on the ground with more work orientated affairs occurring on the higher levels and a mixture of public and upcycling activities occurring on the very top levels of the cityscape.
Cradle to Cradle - 7 Legge Lane
Inspired by The Cradle to Cradle methodology of design, this project looked at reuse and life-cycles at differing scales and the infrastructure necessary to implement a Cradle to Cradle lifestyle to a wider community. This project concluded with the design of The Re-purposing Factory that reused existing, dilapidated buildings in order to turn them into a place for re-purposing waste objects, a place for Cradle to Cradle business start-ups and a community hack space geared towards helping the community learn and lead a Cradle to Cradle lifestyle.
Linear Life cycle Raw Material
Production Product Landfill
Cradle to Cradle Life cycle Raw Material Breaking down
Production Product
Written by Michael Baungart and William McDonough "Cradle to Cradle; Remaking the way we make things" argues for a closed loop system to be implemented into many different aspects of society. This argument has also been conveyed by Michael Palwyn. A closed loop system is a continuing life cycle of resources; this is opposed to the predominant linear cycle in which the resources are lost to a landfill.
In order to situate the project I identified different towns and cities and mapped their traditional sites for waste management against the areas amenities. Using public information I found a correlation between the settlements I was observing; the more opportunities they have to recycle the less amount of waste they recycled. This was how Birmingham became the city that the project was based in. Through observation and comparison of areas of dilapidation and potential to tap in to local communities and waste resources further narrowed the site down to a block within the jewellery quarter.
Through a combination of computer modelling, physical modelling and sketching multiple options for the site was produced until a preferred masteplan for the site was created.
The land usage is different throughout differing levels. Interactions with the public generally occur on the ground with more work orientated affairs occurring on the higher levels and a mixture of public and upcycling activities occurring on the very top levels of the cityscape.
Cradle to Cradle - 7 Legge Lane
Inspired by The Cradle to Cradle methodology of design, this project looked at reuse and life-cycles at differing scales and the infrastructure necessary to implement a Cradle to Cradle lifestyle to a wider community. This project concluded with the design of The Re-purposing Factory that reused existing, dilapidated buildings in order to turn them into a place for re-purposing waste objects, a place for Cradle to Cradle business start-ups and a community hack space geared towards helping the community learn and lead a Cradle to Cradle lifestyle.
Linear Life cycle
Raw Material
Production Product
Landfill
Cradle to Cradle Life cycle
Raw Material Breaking down
Production Product
Written by Michael Baungart and William McDonough "Cradle to Cradle; Remaking the way we make things" argues for a closed loop system to be implemented into many different aspects of society. This argument has also been conveyed by Michael Palwyn. A closed loop system is a continuing life cycle of resources; this is opposed to the predominant linear cycle in which the resources are lost to a landfill.
In order to situate the project I identified different towns and cities and mapped their traditional sites for waste management against the areas amenities. Using public information I found a correlation between the settlements I was observing; the more opportunities they have to recycle the less amount of waste they recycled. This was how Birmingham became the city that the project was based in. Through observation and comparison of areas of dilapidation and potential to tap in to local communities and waste resources further narrowed the site down to a block within the jewellery quarter.
Through a combination of computer modelling, physical modelling and sketching multiple options for the site was produced until a preferred masteplan for the site was created.
The land usage is different throughout differing levels. Interactions with the public generally occur on the ground with more work orientated affairs occurring on the higher levels and a mixture of public and upcycling activities occurring on the very top levels of the cityscape.
Cradle to Cradle - 7 Legge Lane
Inspired by The Cradle to Cradle methodology of design, this project looked at reuse and life-cycles at differing scales and the infrastructure necessary to implement a Cradle to Cradle lifestyle to a wider community. This project concluded with the design of The Re-purposing Factory that reused existing, dilapidated buildings in order to turn them into a place for re-purposing waste objects, a place for Cradle to Cradle business start-ups and a community hack space geared towards helping the community learn and lead a Cradle to Cradle lifestyle.
Linear Life cycle
Raw Material
Production Product
Landfill
Cradle to Cradle Life cycle
Raw Material Breaking down
Production Product
Written by Michael Baungart and William McDonough "Cradle to Cradle; Remaking the way we make things" argues for a closed loop system to be implemented into many different aspects of society. This argument has also been conveyed by Michael Palwyn. A closed loop system is a continuing life cycle of resources; this is opposed to the predominant linear cycle in which the resources are lost to a landfill.
In order to situate the project I identified different towns and cities and mapped their traditional sites for waste management against the areas amenities. Using public information I found a correlation between the settlements I was observing; the more opportunities they have to recycle the less amount of waste they recycled. This was how Birmingham became the city that the project was based in. Through observation and comparison of areas of dilapidation and potential to tap in to local communities and waste resources further narrowed the site down to a block within the jewellery quarter.
Through a combination of computer modelling, physical modelling and sketching multiple options for the site was produced until a preferred masteplan for the site was created.
The land usage is different throughout differing levels. Interactions with the public generally occur on the ground with more work orientated affairs occurring on the higher levels and a mixture of public and upcycling activities occurring on the very top levels of the cityscape.
Cradle to Cradle - 7 Legge Lane
Inspired by The Cradle to Cradle methodology of design, this project looked at reuse and life-cycles at differing scales and the infrastructure necessary to implement a Cradle to Cradle lifestyle to a wider community. This project concluded with the design of The Re-purposing Factory that reused existing, dilapidated buildings in order to turn them into a place for re-purposing waste objects, a place for Cradle to Cradle business start-ups and a community hack space geared towards helping the community learn and lead a Cradle to Cradle lifestyle.
Linear Life cycle
Production Landfill
Raw Material Product
Cradle to Cradle Life cycle Production
Raw Material Breaking down
Product
Written by Michael Baungart and William McDonough "Cradle to Cradle; Remaking the way we make things" argues for a closed loop system to be implemented into many different aspects of society. This argument has also been conveyed by Michael Palwyn. A closed loop system is a continuing life cycle of resources; this is opposed to the predominant linear cycle in which the resources are lost to a landfill. In order to situate the project I identified different towns and cities and mapped their traditional sites for waste management against the areas amenities. Using public information I found a correlation between the settlements I was observing; the more opportunities they have to recycle the less amount of waste they recycled. This was how Birmingham became the city that the project was based in. Through observation and comparison of areas of dilapidation and potential to tap in to local communities and waste resources further narrowed the site down to a block within the jewellery quarter.
Through a combination of computer modelling, physical modelling and sketching multiple options for the site was produced until a preferred masteplan for the site was created.
The land usage is different throughout differing levels. Interactions with the public generally occur on the ground with more work orientated affairs occurring on the higher levels and a mixture of public and upcycling activities occurring on the very top levels of the cityscape.
Cradle to Cradle - 7 Legge Lane
Inspired by The Cradle to Cradle methodology of design, this project looked at reuse and life-cycles at differing scales and the infrastructure necessary to implement a Cradle to Cradle lifestyle to a wider community. This project concluded with the design of The Re-purposing Factory that reused existing, dilapidated buildings in order to turn them into a place for re-purposing waste objects, a place for Cradle to Cradle business start-ups and a community hack space geared towards helping the community learn and lead a Cradle to Cradle lifestyle.
Linear Life cycle
Production Landfill
Raw Material Product
Cradle to Cradle Life cycle
Raw Material Breaking down
Production Product
Written by Michael Baungart and William McDonough "Cradle to Cradle; Remaking the way we make things" argues for a closed loop system to be implemented into many different aspects of society. This argument has also been conveyed by Michael Palwyn. A closed loop system is a continuing life cycle of resources; this is opposed to the predominant linear cycle in which the resources are lost to a landfill. In order to situate the project I identified different towns and cities and mapped their traditional sites for waste management against the areas amenities. Using public information I found a correlation between the settlements I was observing; the more opportunities they have to recycle the less amount of waste they recycled. This was how Birmingham became the city that the project was based in. Through observation and comparison of areas of dilapidation and potential to tap in to local communities and waste resources further narrowed the site down to a block within the jewellery quarter.
Through a combination of computer modelling, physical modelling and sketching multiple options for the site was produced until a preferred masteplan for the site was created.
The land usage is different throughout differing levels. Interactions with the public generally occur on the ground with more work orientated affairs occurring on the higher levels and a mixture of public and upcycling activities occurring on the very top levels of the cityscape.