Mud and Stud Holiday Lets
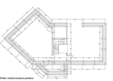
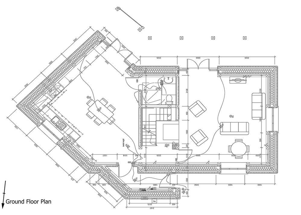
During my first year of my Masters degree I took part in and won a live competition to design holiday lets using a Lincolnshire vernacular building methodology, Mud and Stud. This design for the holiday home was inspired from the traditional Mud and Stud cottages. Inspiration can be found in the central chimney used to heat the whole house. It also uses the same materials: mud, wood and thatch. However the building technique has changed slightly in order to modernise the home. A cavity has been added to the wall in order to improve the thermal efficiency of the building envelope. The design has altered from the typical vernacular in order to benefit from solar gain with shading and floor to ceiling glass on the south facade.

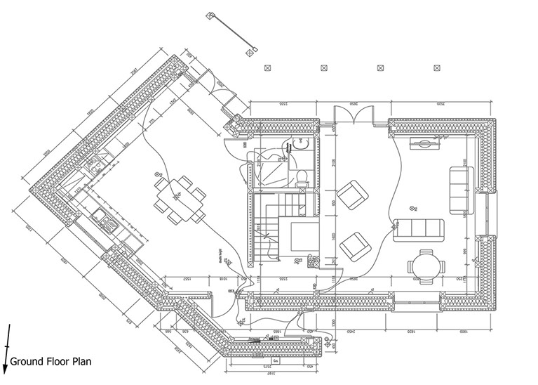
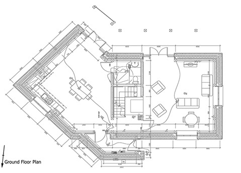
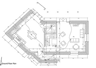
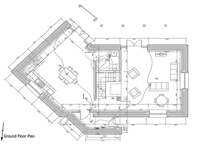
Ground Floor plan of Witham Cottage

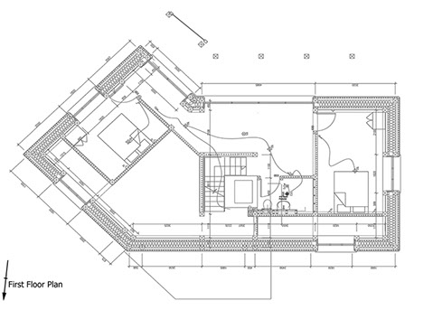
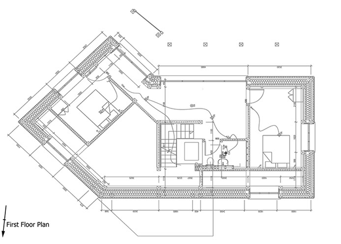
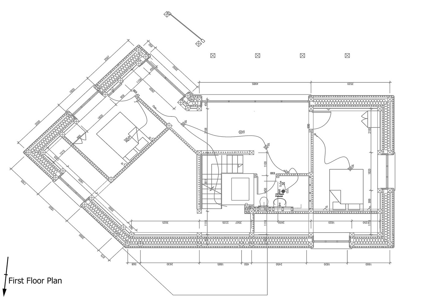
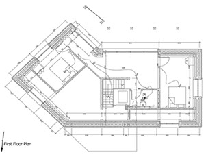
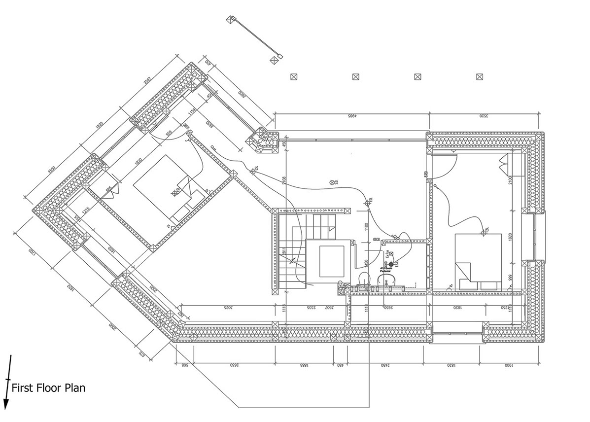
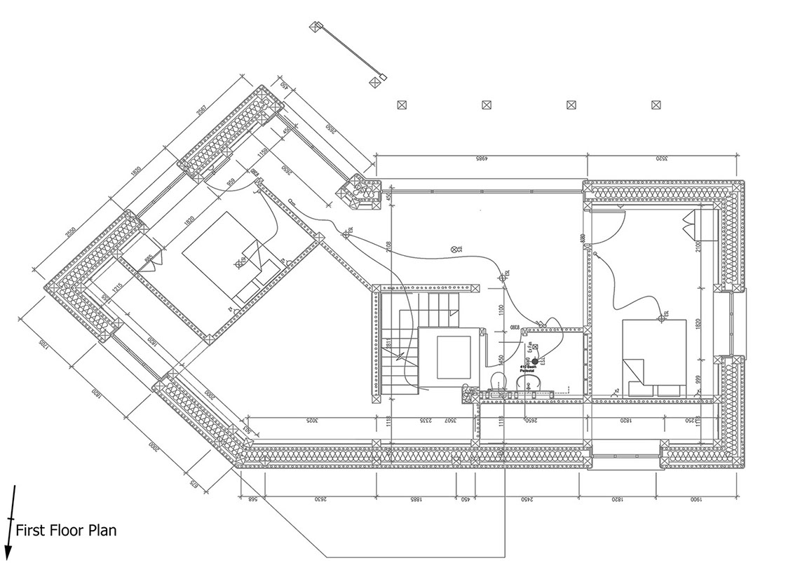
First Floor plan of Witham Cottage

The site where the competition was set was at an open air museum in Skegness. The Museum already had a preserved Mud and Stud cottage (Witham Cottage) on the site however this would not be fit for modern habitation. Witham Cottage provides an excellent example of how traditional Mud and Stud cottages are built and set out. It shows the problems such as small living spaces and wall makeup’s and staircases that would no longer suffice modern building standards. Witham Cottage also inspired architectural elements that would be taken through to my final design, such as a central fireplace and thatched roofs.
Summer Winter Witham cottage
Museum buildings
Movable solar shade Central Chimney Roof lights

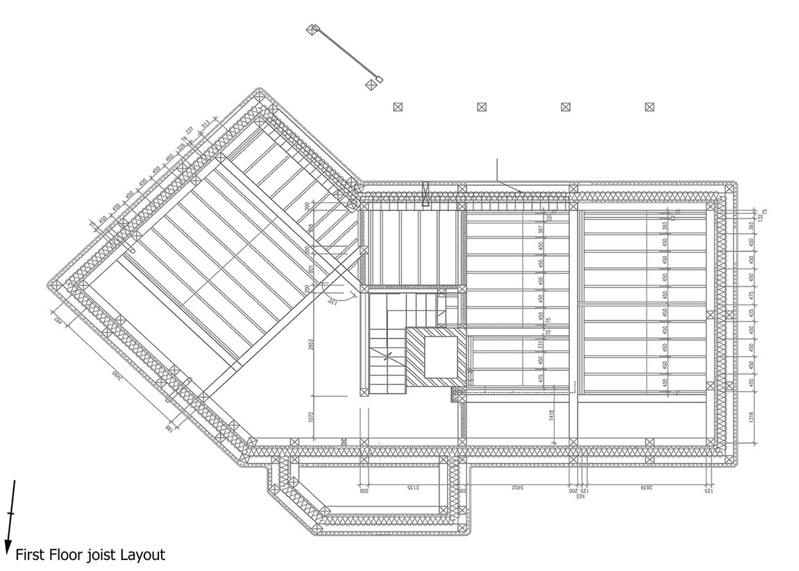
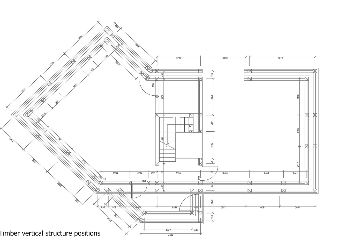
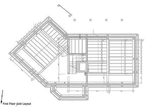
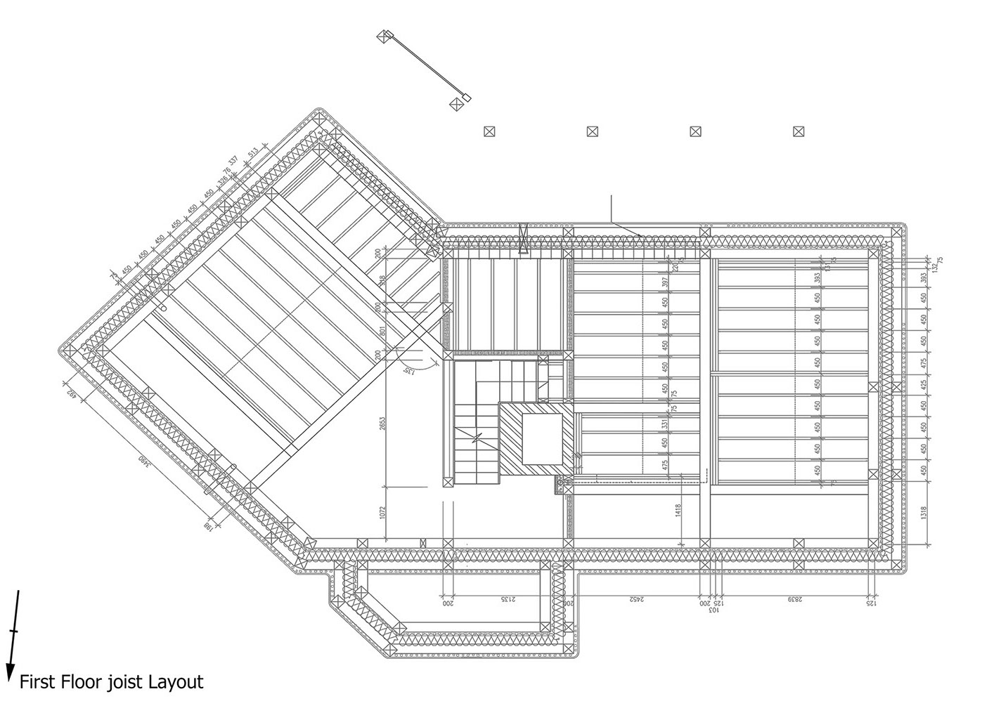
Once I had won the competition, working with the client and competition organisers I refined designs making changes to the roof thickness and creating hips at the gables. The entrance also changed creating an enclosed hallway. As well as aesthetic changes structural refinement of the design was also undertaken.

 

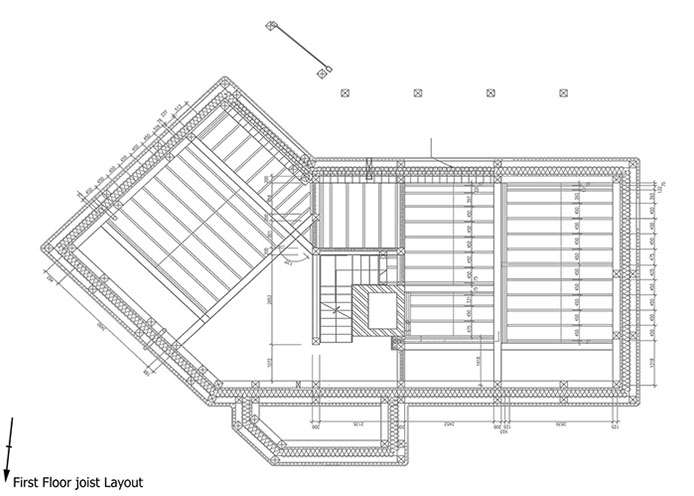
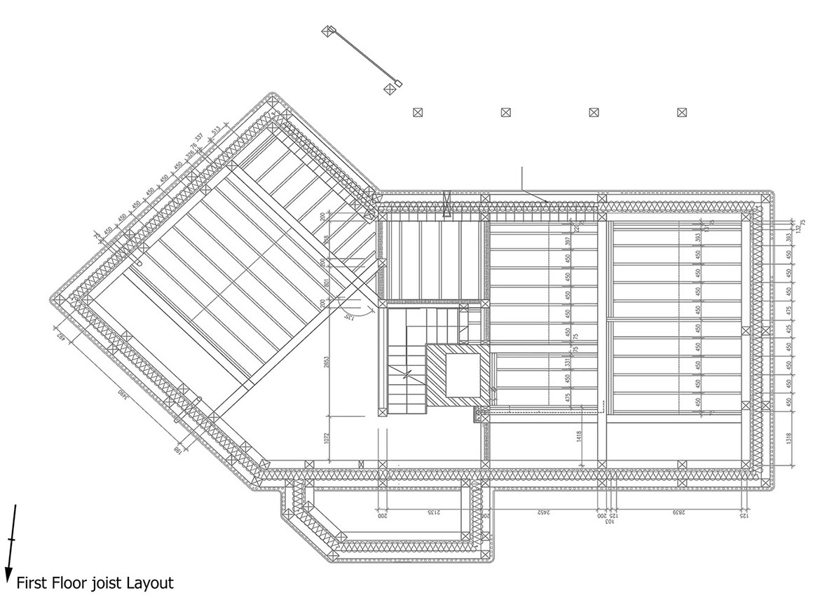
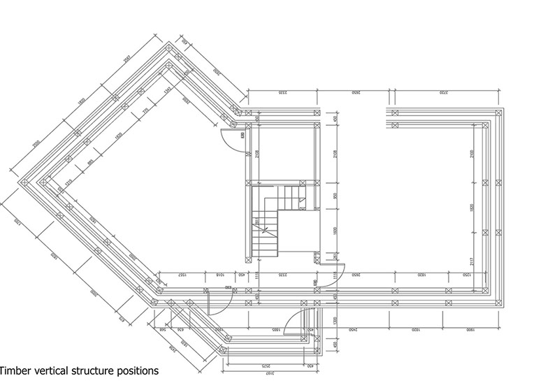
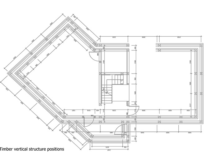
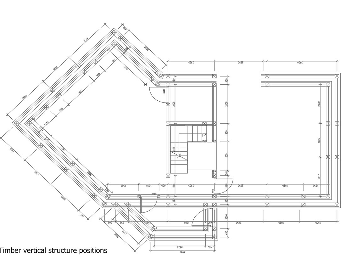
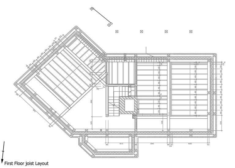
Using experience from conventional housing developer’s substructure, floor joists and roof structure was designed in the same method of construction as typical developers housing stock. This standardised method of construction of elements that are not necessarily needed to be designed in a vernacular makes for ease of construction and reduces cost of construction

Mud and Stud Holiday Lets
During my first year of my Masters degree I took part in and won a live competition to design holiday lets using a Lincolnshire vernacular building methodology, Mud and Stud. This design for the holiday home was inspired from the traditional Mud and Stud cottages. Inspiration can be found in the central chimney used to heat the whole house. It also uses the same materials: mud, wood and thatch. However the building technique has changed slightly in order to modernise the home. A cavity has been added to the wall in order to improve the thermal efficiency of the building envelope. The design has altered from the typical vernacular in order to benefit from solar gain with shading and floor to ceiling glass on the south facade.
The site where the competition was set was at an open air museum in Skegness. The Museum already had a preserved Mud and Stud cottage (Witham Cottage) on the site however this would not be fit for modern habitation. Witham Cottage provides an excellent example of how traditional Mud and Stud cottages are built and set out. It shows the problems such as small living spaces and wall makeup’s and staircases that would no longer suffice modern building standards. Witham Cottage also inspired architectural elements that would be taken through to my final design, such as a central fireplace and thatched roofs.
Summer Winter Witham cottage
Museum buildings
Movable solar shade Central Chimney Roof lights
Mud and Stud Holiday Lets
During my first year of my Masters degree I took part in and won a live competition to design holiday lets using a Lincolnshire vernacular building methodology, Mud and Stud. This design for the holiday home was inspired from the traditional Mud and Stud cottages. Inspiration can be found in the central chimney used to heat the whole house. It also uses the same materials: mud, wood and thatch. However the building technique has changed slightly in order to modernise the home. A cavity has been added to the wall in order to improve the thermal efficiency of the building envelope. The design has altered from the typical vernacular in order to benefit from solar gain with shading and floor to ceiling glass on the south facade.
The site where the competition was set was at an open air museum in Skegness. The Museum already had a preserved Mud and Stud cottage (Witham Cottage) on the site however this would not be fit for modern habitation. Witham Cottage provides an excellent example of how traditional Mud and Stud cottages are built and set out. It shows the problems such as small living spaces and wall makeup’s and staircases that would no longer suffice modern building standards. Witham Cottage also inspired architectural elements that would be taken through to my final design, such as a central fireplace and thatched roofs.
Summer Winter Witham cottage
Museum buildings
Movable solar shade Central Chimney Roof lights
Mud and Stud Holiday Lets
During my first year of my Masters degree I took part in and won a live competition to design holiday lets using a Lincolnshire vernacular building methodology, Mud and Stud. This design for the holiday home was inspired from the traditional Mud and Stud cottages. Inspiration can be found in the central chimney used to heat the whole house. It also uses the same materials: mud, wood and thatch. However the building technique has changed slightly in order to modernise the home. A cavity has been added to the wall in order to improve the thermal efficiency of the building envelope. The design has altered from the typical vernacular in order to benefit from solar gain with shading and floor to ceiling glass on the south facade.
The site where the competition was set was at an open air museum in Skegness. The Museum already had a preserved Mud and Stud cottage (Witham Cottage) on the site however this would not be fit for modern habitation. Witham Cottage provides an excellent example of how traditional Mud and Stud cottages are built and set out. It shows the problems such as small living spaces and wall makeup’s and staircases that would no longer suffice modern building standards. Witham Cottage also inspired architectural elements that would be taken through to my final design, such as a central fireplace and thatched roofs.
Summer Winter Witham cottage Museum buildings
Movable solar shade Central Chimney
Roof lights
Mud and Stud Holiday Lets During my first year of my Masters degree I took part in and won a live competition to design holiday lets using a Lincolnshire vernacular building methodology, Mud and Stud. This design for the holiday home was inspired from the traditional Mud and Stud cottages. Inspiration can be found in the central chimney used to heat the whole house. It also uses the same materials: mud, wood and thatch. However the building technique has changed slightly in order to modernise the home. A cavity has been added to the wall in order to improve the thermal efficiency of the building envelope. The design has altered from the typical vernacular in order to benefit from solar gain with shading and floor to ceiling glass on the south facade.
The site where the competition was set was at an open air museum in Skegness. The Museum already had a preserved Mud and Stud cottage (Witham Cottage) on the site however this would not be fit for modern habitation. Witham Cottage provides an excellent example of how traditional Mud and Stud cottages are built and set out. It shows the problems such as small living spaces and wall makeup’s and staircases that would no longer suffice modern building standards. Witham Cottage also inspired architectural elements that would be taken through to my final design, such as a central fireplace and thatched roofs.
Winter Witham cottage
Summer Museum buildings
Central Chimney
Roof lights
Movable solar shade
Mud and Stud Holiday Lets During my first year of my Masters degree I took part in and won a live competition to design holiday lets using a Lincolnshire vernacular building methodology, Mud and Stud. This design for the holiday home was inspired from the traditional Mud and Stud cottages. Inspiration can be found in the central chimney used to heat the whole house. It also uses the same materials: mud, wood and thatch. However the building technique has changed slightly in order to modernise the home. A cavity has been added to the wall in order to improve the thermal efficiency of the building envelope. The design has altered from the typical vernacular in order to benefit from solar gain with shading and floor to ceiling glass on the south facade.
The site where the competition was set was at an open air museum in Skegness. The Museum already had a preserved Mud and Stud cottage (Witham Cottage) on the site however this would not be fit for modern habitation. Witham Cottage provides an excellent example of how traditional Mud and Stud cottages are built and set out. It shows the problems such as small living spaces and wall makeup’s and staircases that would no longer suffice modern building standards. Witham Cottage also inspired architectural elements that would be taken through to my final design, such as a central fireplace and thatched roofs.
Winter Witham cottage
Summer Museum buildings
Central Chimney
Roof lights
Movable solar shade
Mud and Stud Holiday Lets
During my first year of my Masters degree I took part in and won a live competition to design holiday lets using a Lincolnshire vernacular building methodology, Mud and Stud. This design for the holiday home was inspired from the traditional Mud and Stud cottages. Inspiration can be found in the central chimney used to heat the whole house. It also uses the same materials: mud, wood and thatch. However the building technique has changed slightly in order to modernise the home. A cavity has been added to the wall in order to improve the thermal efficiency of the building envelope. The design has altered from the typical vernacular in order to benefit from solar gain with shading and floor to ceiling glass on the south facade.
The site where the competition was set was at an open air museum in Skegness. The Museum already had a preserved Mud and Stud cottage (Witham Cottage) on the site however this would not be fit for modern habitation. Witham Cottage provides an excellent example of how traditional Mud and Stud cottages are built and set out. It shows the problems such as small living spaces and wall makeup’s and staircases that would no longer suffice modern building standards. Witham Cottage also inspired architectural elements that would be taken through to my final design, such as a central fireplace and thatched roofs.
Summer Winter Witham cottage Museum buildings
Central Chimney
Roof lights
Movable solar shade
Mud and Stud Holiday Lets
During my first year of my Masters degree I took part in and won a live competition to design holiday lets using a Lincolnshire vernacular building methodology, Mud and Stud. This design for the holiday home was inspired from the traditional Mud and Stud cottages. Inspiration can be found in the central chimney used to heat the whole house. It also uses the same materials: mud, wood and thatch. However the building technique has changed slightly in order to modernise the home. A cavity has been added to the wall in order to improve the thermal efficiency of the building envelope. The design has altered from the typical vernacular in order to benefit from solar gain with shading and floor to ceiling glass on the south facade.
The site where the competition was set was at an open air museum in Skegness. The Museum already had a preserved Mud and Stud cottage (Witham Cottage) on the site however this would not be fit for modern habitation. Witham Cottage provides an excellent example of how traditional Mud and Stud cottages are built and set out. It shows the problems such as small living spaces and wall makeup’s and staircases that would no longer suffice modern building standards. Witham Cottage also inspired architectural elements that would be taken through to my final design, such as a central fireplace and thatched roofs.
Summer Winter Witham cottage Museum buildings
Central Chimney
Roof lights
Movable solar shade