The Futuristic House

In this brief I was challenged to develop a concept of a house that could adapt to the problems of the future, this includes environmental and socio-economic problems. I started by looking at housing typical of what is built today.

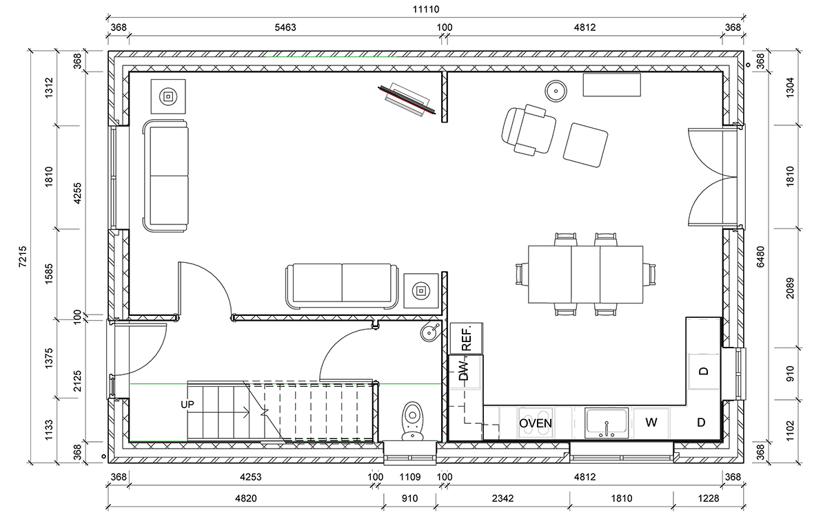
Open plan kitchen dining room allows for two room typologies to be created in a smaller area.

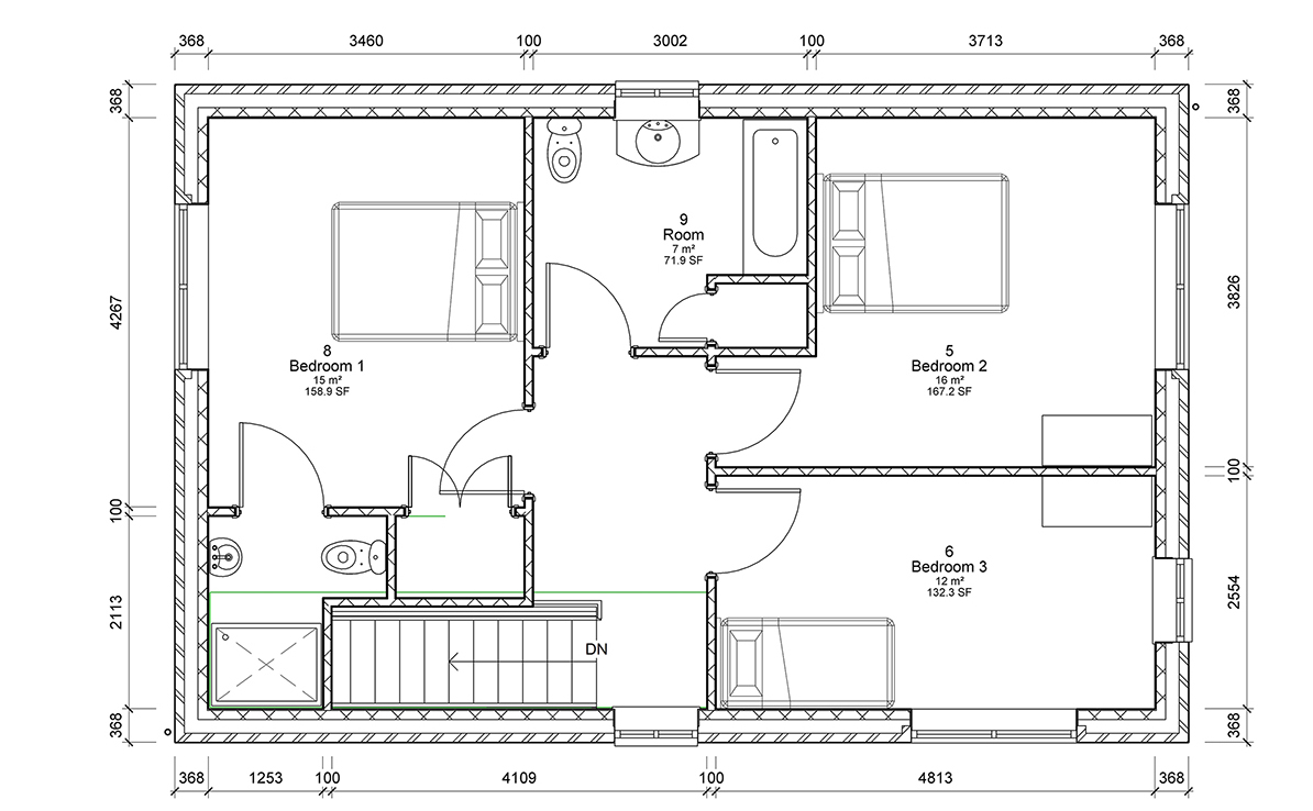
This house is typical of conventional housing stock. I have designed it to be a 3 bedroom, 5 person house that meets space requirement targets

The single bedrooms 7.5m2 and is at least 2.15m wide and doubles to be 11.5m2 and is at least 2.75m wide. however these are only guidelines.

 

Architectural details are often very plain and generic

The Futuristic House
The Futuristic House
The Futuristic House
The Futuristic House
The Futuristic House
The Futuristic House
The Futuristic House
The Futuristic House
The Futuristic House
The Futuristic House
The Futuristic House
The Futuristic House
The Futuristic House
The Futuristic House